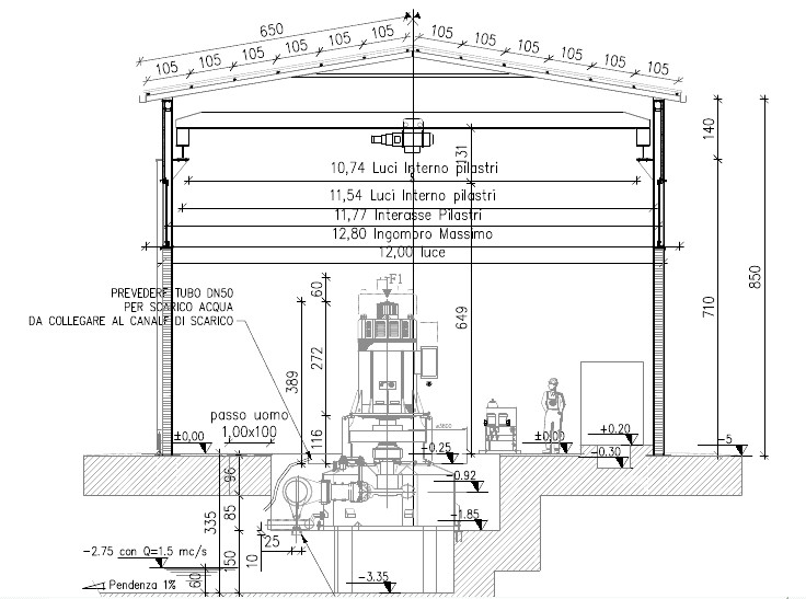
centrale: progetto esecutivo sezione
Condividi:
- Fai clic per condividere su Facebook (Si apre in una nuova finestra) Facebook
- Fai clic per condividere su X (Si apre in una nuova finestra) X
- Fai clic qui per stampare (Si apre in una nuova finestra) Stampa
- Fai clic per inviare un link a un amico via e-mail (Si apre in una nuova finestra) E-mail
- Fai clic qui per condividere su LinkedIn (Si apre in una nuova finestra) LinkedIn
- Fai clic qui per condividere su Pinterest (Si apre in una nuova finestra) Pinterest
- Fai clic per condividere su WhatsApp (Si apre in una nuova finestra) WhatsApp
